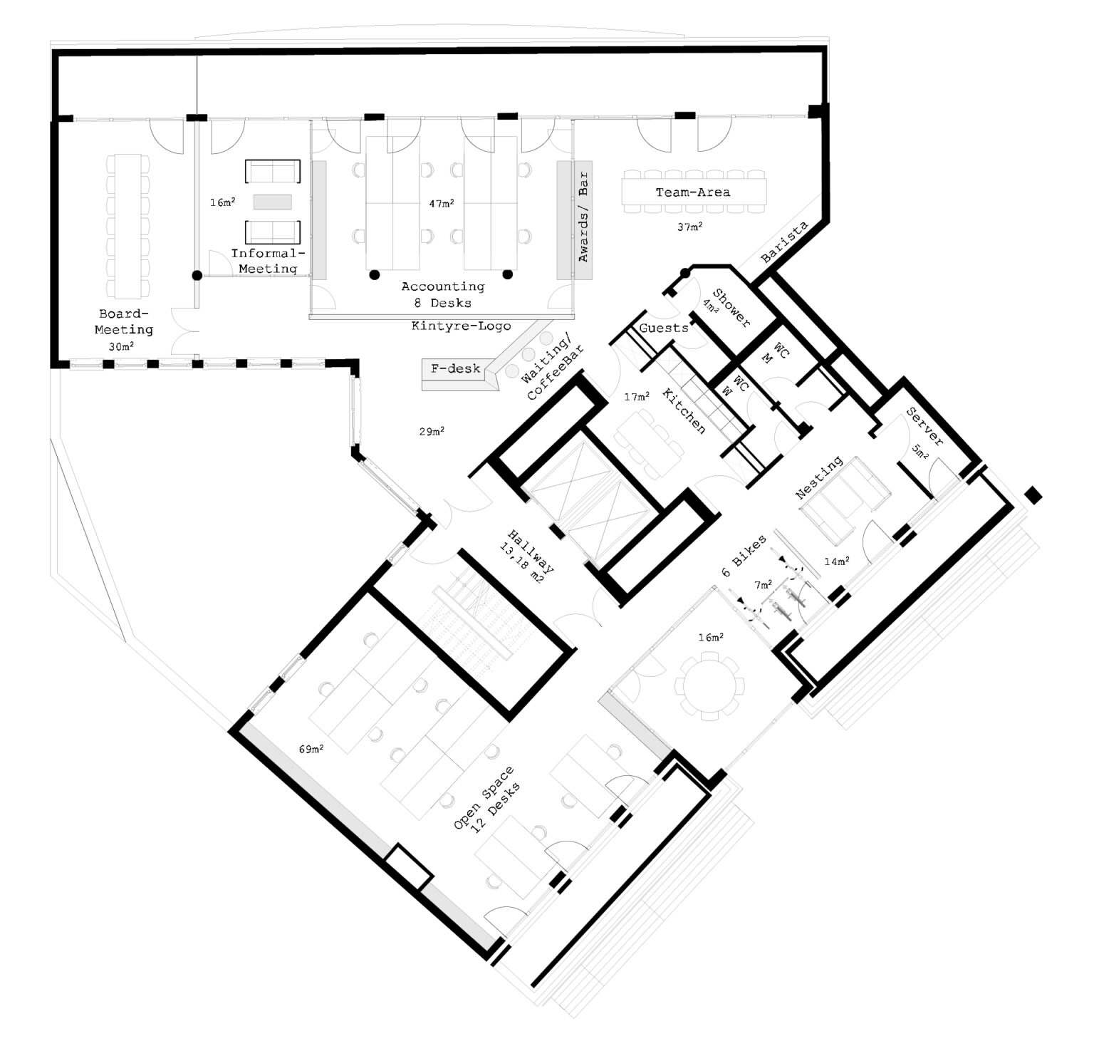
Die altmodische Büroeinheit im 7. OG sollte in kurzer Zeit im neuen Glanz erstrahlen und so entschieden wir uns für einen offenen Grundriss für das neue Office. Dieser unterstreicht nicht nur die kollegiale Philosophie des Unternehmens, er ermöglicht zudem eine lockere Möblierung. Das großzügig in den Innenbereich scheinende Tageslicht sorgt für eine warme Atmosphäre in den Büroeinheiten. In der Mitte der zwei Abteilungen befindet sich der neue Empfangsbereich sowie die Teamküche für ca. 12 Mitarbeiter.
Die neuen Oberflächen und die offene Technikdecke verleihen der Büroeinheit einen industriellen und Loft-ähnlichen Flair. Die beiden Flügel sind an einen Konferenzraum für offizielle, sowie an den Mitarbeiterraum für informelle Meetings angeknüpft. Der Ausblick auf das umliegende Stadtzentrum tut in der 7. Etage sein Übriges.
Bauherr | Kintyre |
Architektur | JOHNNY architecture 2018 |
Kooperationspartner | TAFKAL GmbH |
Standort | Frankfurt am Main |
BRI | 1.200 m³ |
BGF | 413 m² |
NUF | 331 m² |
Kosten | 200.000 Euro (KG 200 – 700) |
Bauzeit | April 2018 – August 2018 |
Geschäftsführer
Weitere Projektbeteiligte
Architektur
Jon Steinfeld
Mitarbeiter Bauleitung
Veronica Lill
Sprechen Sie mich an:
hallo@johnny-architecture.de